進城買房不如回家蓋房,這8套自建別墅,讓你徹底愛上農村!
隨著房價物價的迅速攀升,很多在外面打工的朋友感覺在城里買一套房子變得越來越艱難了,而且城市里住房面積小,空氣質量越來越差;鄉下就不一樣了,鄉下環境好,空氣清新,手頭有個二三十萬就可以建一棟好點的房,再買輛車,生活也可以過得很瀟灑。但目前絕大多數農村建房的師傅沒有專業的施工圖紙,建起來的房子千篇一律,感覺很土氣,沒有創新!這次給大家分享8款自建別墅,讓你徹底愛上農村!
三層別墅:帶露臺小戶型
編號: DC0365
結構形式: 磚混結構
主體造價: 24-28萬
開間: 12.3米 進深: 9米
占地面積: 115.87平方米
建筑面積: 300.19平方米

別墅極具現代感和流行元素,房屋的外型線條非常自然,看到了都會忍不住仔細瞧一瞧,大方紋理分明的建筑結構豐富了別墅的立面想象。
首層戶型:

二層戶型:

三層戶型:

一 層:走廊、門廳、客廳、臥室、廚房、餐廳、衛生間
二 層:起居室、娛樂室、臥室(附露臺)、2臥室、衛生間
三 層:健身房、臥室、衛生間、露臺
二層別墅:帶車庫露臺
編號: DC0362
結構形式: 磚混結構
主體造價: 26-30萬
開間:17.1米 進深: 10.2米
占地面積: 181.49平方米
建筑面積: 341.34平方米

首選當然是這種兩層帶車庫和露臺的設計。別墅整體造型簡單清新,方方正正的布局,這樣的設計最適合農村。紅色的屋頂和白色的墻搭配,堪稱經典。
一層戶型:

二層戶型:

一層:門廳、客廳、臥室(附衛生間)、臥室、廚房、餐廳、衛生間、車庫
二層:臥室(附衛生間)、臥室(附露臺)、2臥室、衛生間、露臺
三層別墅:復式帶車庫簡歐小別墅
編號: DC0229
結構形式: 磚混結構
主體造價: 24-28萬
開間: 11.7米 進深: 11.1米
占地面積: 125.93平方米
建筑面積: 303.96平方米

很多人建房子都喜歡講究大,但其實不一定非要建得多大,三層剛剛好。這套別墅整體風格偏向歐式,藍色的屋頂,米色的墻面,色調搭配很清新。客廳大型落地窗無疑是一大亮點,配合精致的外形和裝飾,讓整個房子的氣質大氣而高雅。
一層戶型:

圖紙預覽:

一 層:客廳(中空)、臥室、廚房、餐廳、衛生間、車庫
二 層:小客廳、臥室(附陽臺)、2臥室、衛生間
三 層:小客廳、臥室(附陽臺)、2臥室、衛生間、露臺
三層別墅:帶車庫露臺
編號: DC0001
結構形式: 框架結構
主體造價: 34-40萬
開間: 13.3米 進深: 14.6米
占地面積: 147.7平方米
建筑面積: 366.4平方米



這是一個三層的歐式別墅采用的是三層加頂蓋的設計,我們可以從這樣的一個三層的歐式別墅正面發現,它采用的是較大面積的玻璃窗設計。玻璃窗的數量適中,而且建筑的正面的面積占比十分的科學。設計師巧妙地利用大型的玻璃窗設計能夠使整個房間更加的通透,也能夠給人直觀的干凈端莊的感覺。另外整個別墅,它充分體現了歐式建筑的高尖直的特點,巧妙地避免了大型三層歐式別墅常見的外形臃腫的問題出現。
一層戶型:

圖紙預覽:

一 層:入口玄關、客廳、餐廳、廚房、客房、衛生間、車庫
二 層:臥室、臥室(附陽臺)、臥室(附書房,衛生間,陽臺)、衛生間
三 層:活動廳(附露臺)、臥室、臥室(附露臺)、臥室(附書房,衛生間,陽臺)、衛生間
三層別墅:歐式雙拼
編號: DC0284
結構形式: 框架結構
開間: 23.2米 進深: 12.1米
占地面積: 274.14平方米
建筑面積: 732.07平方米
主體造價: 50萬以上

用簡歐的風格詮釋出這棟雙拼別墅,別墅遵循左右對稱的建筑形態,符合中國人講究“四平八穩”的審美需求;別墅外觀,敦厚、大氣,給人一種考究的奢美之感。
首層戶型:

圖紙預覽:

一 層:客廳(中空)、老人房(附衛生間)、臥室、廚房、餐廳、衛生間
二 層:起居室、主臥(附衛生間,陽臺)、2臥室、書房、衛生間
三 層:健身房、主臥(附衛生間,陽臺)、臥室、衛生間、露臺
二層別墅:復式客廳
編號: DC0373
結構形式: 磚混結構
主體造價: 36-40萬
開間: 15.14米 進深: 13.14米
占地面積: 176.83平方米
建筑面積: 397.40平方米


別墅外觀造型別致大方,整體的顏色搭配沉穩低調,淺粽色外墻耐臟又增強了房子的質感。加上歐式的建筑線條,充滿歐陸風情,這樣的一棟別墅,在鄉村之中不禁讓人駐足。
一層戶型:

二層戶型:

一 層:門廳、客廳(中空)、臥室(附衛生間)、臥室、廚房、餐廳、衛生間、車庫
二 層:客廳(附露臺)、娛樂室、臥室(附衛生間,露臺)、臥室(附露臺)、2臥室、儲物間、衛生間
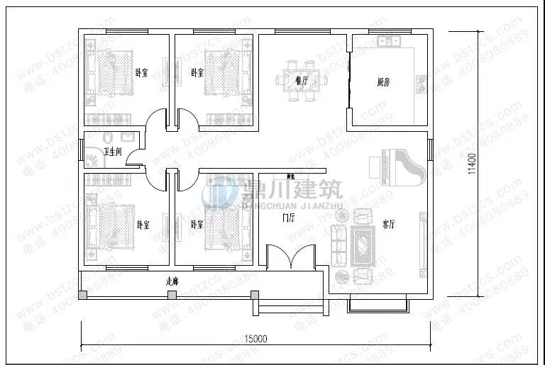
一層別墅:帶門廳
編號: DC0369
結構形式: 磚混結構
主體造價: 16-20萬
開間: 15米 進深: 11.4米
占地面積: 177.39平方米
建筑面積: 217.03平方米

紅色的外墻,靈動又不失貴氣,豐富的坡頂造型讓不會房子顯得笨重。4個臥室的設計,完全能滿足多人口家庭的三代同堂。
首層戶型:

一 層:走廊、門廳、客廳、4臥室、廚房、餐廳、衛生間
二層別墅:帶大露臺
編號: DC0355
結構形式: 磚混結構
主體造價: 25-30萬
開間: 12米 進深: 11.6米
占地面積: 135.56平方米
建筑面積: 300.98平方米

別墅極具現代感和流行元素,房屋的外型線條非常自然,看到了都會忍不住仔細瞧一瞧,大方紋理分明的建筑結構豐富了別墅的立面想象。


一 層:門廳、客廳、臥室(附衛生間)、廚房、餐廳、衛生間
二 層:起居室、棋牌室(附露臺)、臥室(附衛生間,陽臺)、臥室(附陽臺)、臥室、衛生間
有農村宅基地的小伙伴,城里高昂的商品房,還真不如回家蓋個獨棟舒適,空間寬敞,居住舒適,環境優美,擁有農村清新的空氣,自然生態資源,擁有一處寧靜的田園生活。
.jpg)
本文由別墅圖紙超市編輯發布,如需了解更多,可登錄網站主頁http://m.titanex.cn/,或者撥打我們的免費電話400-8080-889在線咨詢。
>>>>推薦閱讀:10款戶型嚴謹私密性強的農村別墅,布局必須給滿分!
>>>>推薦閱讀:10款占地100平左右農村別墅,小宅地基建大氣別墅就這么簡單!
>>>>推薦閱讀:12款占地不足百平的農村別墅,經濟實用,最高造價不過26萬!











