10款戶型嚴謹私密性強的農村別墅,布局必須給滿分!
有人建房在乎的是外觀是否大氣,有些人則會考慮造價是否便宜。然而不管是哪一種,房子的布局都是大家必定會糾結的。就農村來講,大家都是熱情好客的,大門常常是打開的方便鄰居之間相互串門。而有時候自己出門溜達啥的也不會說記得一定要關門,這時候,這房子有一個好的布局就顯得至關重要了。下面小編就介紹10款戶型嚴謹私密性強的農村別墅設計圖給大家,這10款設計圖不僅外觀時尚,而且戶型布局相當討喜,因為實在太適合農村的生活習慣和生活方式了。
編號: DC0352
層數: 二層
結構形式: 磚混結構
主體造價: 25-30萬
開間: 12.1米
進深: 13.9米
占地面積: 151.09平方米
建筑面積: 300.11平方米



一 層:堂屋、客廳、臥室(附衛生間)、臥室、廚房、餐廳、衛生間
二 層:起居室、臥室(附衛生間)、臥室(附陽臺)、臥室、衛生間、露臺
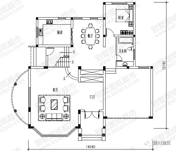
編號: DC0373
層數: 二層
結構形式: 磚混結構
主體造價: 36-40萬
開間: 15.14米
進深: 13.14米
占地面積: 176.83平方米
建筑面積: 397.40平方米



一 層:門廳、客廳(中空)、臥室(附衛生間)、臥室、廚房、餐廳、衛生間、車庫
二 層:客廳(附露臺)、娛樂室、臥室(附衛生間,露臺)、臥室(附露臺)、2臥室、儲物間、衛生間
編號: DC0348
層數: 二層
結構形式: 框架結構
主體造價: 35-40萬
開間: 13.2米
進深: 14.1米
占地面積: 172.84平方米
建筑面積: 383.70平方米



一 層:門廳、客廳、臥室(附衛生間)、2臥室、廚房、餐廳、衛生間
二 層:起居室(附露臺)、臥室(附衣帽間,衛生間)、臥室(附書房,露臺)、2臥室、衛生間
編號: DC0287
層數: 二層
結構形式: 框架結構
主體造價: 25-30萬
開間: 12.3米
進深: 11.1米
占地面積: 130平方米
建筑面積: 295.19平方米


一 層:走廊、堂屋、客廳、2臥室、廚房、餐廳、衛生間、儲藏室
二 層:客廳(附露臺)、臥室(附書房,露臺)、臥室(附露臺)、臥室、衛生間
編號: DC0265
層數: 二層
結構形式: 框架結構
主體造價: 30-35萬
開間: 14.7米
進深: 10.8米
占地面積: 148.78平方米
建筑面積: 354.63平方米


一 層:客廳、臥室、棋牌室、廚房、餐廳、衛生間、儲藏室、車庫
二 層:休息區、客廳(附陽臺)、臥室(附書房,衛生間)、臥室(附衣帽間)、2臥室、衛生間
編號: DC0176
層數: 三層
結構形式: 磚混結構
主體造價: 35-40萬
開間: 14.94米
進深: 15.14米
占地面積: 201平方米
建筑面積: 450平方米


一 層:門廳、客廳、臥室、廚房、餐廳、衛生間、車庫
二 層:臥室(附衛生間,露臺)、臥室(附衣帽間,衛生間)、臥室(附衛生間)
三 層:臥室(附衣帽間,衛生間,露臺)、活動室、衛生間、露臺
編號: DC0209
層數: 三層
結構形式: 框架結構
主體造價: 28-32萬
開間: 12.2米
進深: 13.6米
占地面積: 125平方米
建筑面積: 330.6平方米


一 層:客廳、臥室、廚房、餐廳、衛生間、車庫
二 層:臥室(附衛生間,露臺)、2臥室、衛生間
三 層:休閑廳(附露臺)、臥室(附陽臺)、衛生間
編號: DC0276
層數: 三層
結構形式: 框架結構
主體造價: 25-30萬
開間: 12米
進深: 9.3米
占地面積: 97.58平方米
建筑面積: 275.41平方米


一 層: 堂屋、客廳、臥室、廚房、餐廳、儲藏室、衛生間
二 層: 起居室、娛樂室、臥室(附陽臺)、臥室、衛生間、露臺
三 層: 3臥室、衛生間、露臺
編號: DC0270
層數: 三層
結構形式: 框架結構
主體造價: 36-42萬
開間: 14.4米
進深: 13.574米
占地面積: 153.35平方米
建筑面積: 439.63平方米


一 層:堂屋、客廳、娛樂室、臥室(附衛生間)、臥室、廚房(附陽臺)、餐廳、衛生間
二 層:客廳、娛樂室、臥室(附衛生間)、臥室(附陽臺)、2臥室、書房(附陽臺)、衛生間
三 層:客廳、娛樂室(附陽臺)、2臥室、衛生間、露臺
編號: DC0314
層數: 三層
結構形式: 磚混結構
主體造價: 38-42萬
開間: 16.5米
進深: 10.5米
占地面積: 165.88平方米
建筑面積: 479.52平方米


一 層:門廳、客廳(中空)、2臥室、棋牌室、儲存間、廚房、餐廳、2衛生間
二 層:臥室(附書房,衣帽間,衛生間)、2臥室、衛生間、露臺
三 層:3臥室、家庭影院、2衛生間、露臺
.jpg)
本文由別墅圖紙超市編輯發布,如需了解更多,可登錄網站主頁http://m.titanex.cn/,或者撥打我們的免費電話400-8080-889在線咨詢。
>>>>推薦閱讀:6套帶旋轉樓梯農村自建別墅,大氣有品位,看過的都說好
>>>>推薦閱讀:15款定制小別墅讓你愛上農村,第2套低調貴氣,第12套最豪華
>>>>推薦閱讀:10款占地100平左右農村別墅,小宅地基建大氣別墅就這么簡單!











