兩款相似的農村二層半雙拼別墅設計,你更鐘愛哪一款?
國家二胎政策全面放開之后,很多原本一胎的家庭都迎來了另一個幸福的負擔。都說最幸福的就是一兒一女的配置,但是我覺得兩兒兩女同樣值得驕傲,只要是自己的娃怎么都愛不是嗎?如果條件允許,待他們相攜成年,為他們在家里建上一套雙拼別墅,一家人其樂融融豈不快哉!今天小編為大家介紹兩款相似的農村二層半雙拼別墅設計,你更鐘愛哪一款呢?
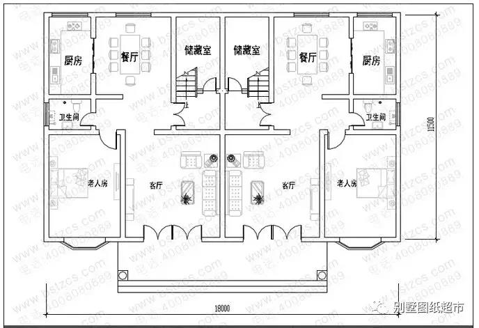
第一款

編號: DC0163
結構形式: 磚混結構
開間: 18米 進深: 11.5米
占地面積: 214.14平方米
建筑面積: 531.58平方米
主體造價: 40-48萬
首層戶型:

圖紙預覽:



一 層:客廳、臥室、廚房、餐廳、儲藏室、衛生間
二 層:客廳(附陽臺)、2臥室、衛生間
三 層:2臥室、衛生間、露臺
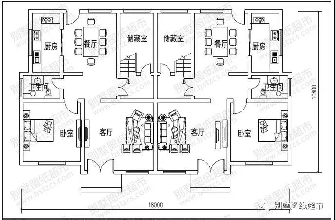
第二款

編號: DC0206
結構形式: 磚混結構
開間: 18米 進深: 10.8米
占地面積: 191.4平方米
建筑面積: 462.8平方米
主體造價: 30-36萬
首層戶型:

圖紙預覽:



一 層:客廳、臥室、廚房、餐廳、儲藏室、衛生間
二 層:臥室(附陽臺)、臥室(附衣帽間)、臥室、衛生間
三 層:娛樂室、露臺
.jpg)
本文由別墅圖紙超市編輯發布,如需了解更多,可登錄網站主頁http://m.titanex.cn/,或者撥打我們的免費電話400-8080-889在線咨詢。
>>>>推薦閱讀:5款論戶型和外觀都是農村別墅精品的二層精致小別墅
>>>>推薦閱讀:這8套農村別墅設計,戶型討喜,堂屋露臺一應俱全!
>>>>推薦閱讀:10款復式客廳自建別墅,大氣好戶型,開春建房不用愁!











