造價18萬二層帶陽臺小別墅,磚混結構,占地不到100平!
今天小編為大家帶來一款二層帶陽臺小別墅,開間:10.2米 進深:9.7米,占地面積:96.6平方米,主體造價18萬就可以搞定,磚混結構也是農村建房很喜歡的一種建房模式,看看適合你家不!
造型效果圖

戶型基本信息
編號: DC0235
結構形式: 磚混結構
開間: 10.2米 進深: 9.7米
占地面積: 96.6平方米
建筑面積: 193.2平方米
主體造價: 18-22萬
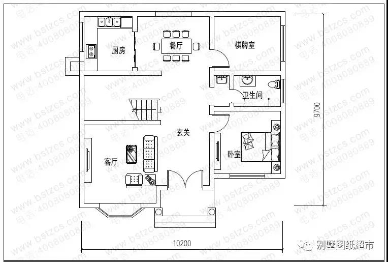
首層戶型:

圖紙預覽:


一 層:玄關、客廳、臥室、棋牌室、廚房、餐廳、衛生間
二 層:小客廳、臥室(附陽臺)、3臥室、衛生間
.jpg)
本文由別墅圖紙超市編輯發布,如需了解更多,可登錄網站主頁http://m.titanex.cn/,或者撥打我們的免費電話400-8080-889在線咨詢。
>>>>推薦閱讀:面寬12米農村建房,13款經典實用戶型,辛苦打拼要建好房子!
>>>>推薦閱讀:帶雙露臺的二層別墅,5款案例讓你知道有多受歡迎!
>>>>推薦閱讀:11×9.6米小宅基地二層別墅設計,坡屋頂設計顯大氣!











