5款平坡結合的農村別墅設計,幫你解決平頂好還是坡頂好的糾結!
對于很多準備農村自建房的朋友來說,關于平頂和坡頂的選擇總是那么糾結,到底是平頂好?還是坡頂好呢?那今天小編就為正在糾結的你找到解決辦法了。如果你建房的時候,實在是在平屋頂和坡屋頂之間搖擺不定,那就選擇平坡相結合的吧!5款平坡結合的農村別墅分享給大家!
編號: DC0255
層數: 二層
結構形式: 框架結構
主體造價: 22-28萬
開間: 11.8米
進深: 14.1米
占地面積: 135.6平方米
建筑面積: 229.84平方米
一 層: 客廳、臥室、廚房、餐廳、雜物間、衛生間、車庫
二 層: 3臥室、衛生間、露臺
圖紙預覽:
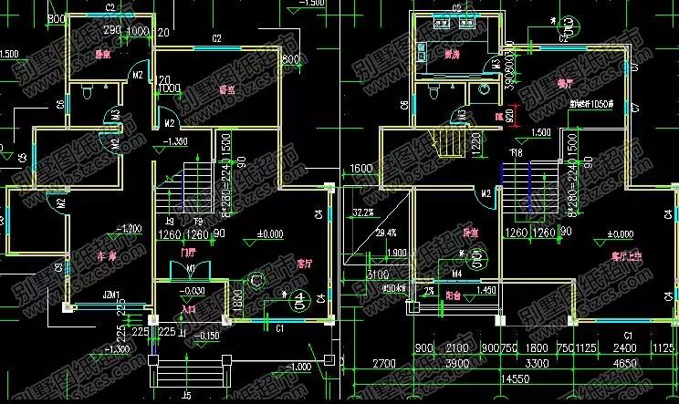
編號: DC0202
層數: 三層
結構形式: 磚混結構
主體造價: 20-25萬
開間: 10.5米
進深: 12米
占地面積: 121.1平方米
建筑面積: 310平方米
一 層: 客廳、臥室、廚房、餐廳、衛生間、車庫
二 層: 臥室(附衛生間,書房)、臥室(附衣帽間)、臥室、衛生間、露臺
三 層: 健身房、露臺
圖紙預覽:
編號: DC0170
層數: 三層
結構形式: 框架結構
主體造價: 32-38萬
開間: 14.55米
進深: 13.8米
占地面積: 170.6平方米
建筑面積: 381.7平方米
一 層: 門廳、客廳、2臥室、儲藏室、衛生間、車庫(附雜物間)
二 層: 臥室(附陽臺)、廚房、餐廳、衛生間
三 層: 臥室(附陽臺,露臺)、臥室、陽臺(附露臺)、衛生間
圖紙預覽:
編號: DC0162
層數: 三層
結構形式: 磚混結構
主體造價: 20-24萬
開間: 9米
進深: 15米
占地面積: 135平方米
建筑面積: 300平方米
一 層: 院子、麻將室、堂屋、客廳、廚房兼餐廳、衛生間、車庫
二 層: 臥室(附書房,露臺)、臥室(附陽臺)、3臥室、衛生間
三 層: 臥室、桌球室、衛生間、露臺
圖紙預覽:
編號: DC0142
層數: 三層
結構形式: 框架結構
主體造價: 38-45萬
開間: 12.5米
進深: 15米
占地面積: 160.8平方米
建筑面積: 450平方米
一 層: 客廳、臥室(附衛生間)、臥室、棋牌室、廚房、餐廳、儲藏室、衛生間
二 層: 客廳、臥室(附衛生間,陽臺)、臥室(附陽臺)、臥室、書房、廚房、餐廳、儲藏室、衛生間
三 層: 會客廳、臥室(附陽臺,露臺)、臥室、涼亭、衛生間
圖紙預覽:
.jpg)
本文由別墅圖紙超市編輯發布,如需了解更多,可登錄網站主頁http://m.titanex.cn/,或者撥打我們的免費電話400-8080-889在線咨詢。
>>>>推薦閱讀:10款進深12米農村別墅,不可錯過的戶型,蓋一棟值了
>>>>推薦閱讀:30款火遍農村的小別墅,第1款豪華氣派,大家都想建!
>>>>推薦閱讀:6款占地不足100平的二層農村別墅設計圖,小宅基地的看過來











