這15套農村小別墅,堪稱農村建房典范,造價便宜布局還超實用!
農村建房,絕大多數人一輩子就建這么一次,外觀、布局都要是自己喜歡的才能對得起自己這些年來辛辛苦苦掙的錢。今天這15款農村別墅,尺寸適中,布局適用,外觀也很大氣,堪稱農村建房典范。
農村二層小別墅

編號: DC0355
層數: 二層結
構形式: 磚混結構
開間: 12米 進深: 11.6米
占地面積: 135.56平方米
建筑面積: 300.98平方米
主體造價: 25-30萬


一 層:門廳、客廳、臥室(附衛生間)、廚房、餐廳、衛生間
二 層:起居室、棋牌室(附露臺)、臥室(附衛生間,陽臺)、臥室(附陽臺)、臥室、衛生間
農村三層帶旋轉樓梯別墅

編號: DC0219
層數: 三層
結構形式: 框架結構
開間: 11.7米 進深: 12米
占地面積: 138.16平方米
建筑面積: 352.46平方米
主體造價: 30-35萬
首層戶型:

圖紙預覽:

一 層:客廳、臥室(附衛生間)、臥室、廚房、餐廳、衛生間
二 層:客廳、臥室(附衛生間)、臥室、兒童房、棋牌室、衛生間、露臺
三 層:臥室(附書房)、臥室、衛生間、露臺
新農村二層復式帶露臺別墅

編號: DC0250
層數: 二層
結構形式: 磚混結構
開間: 11.34米 進深: 13.31米
占地面積: 136.40平方米
建筑面積: 254.44平方米
主體造價: 20-25萬



一 層:客廳、臥室(附衛生間)、臥室、儲藏室、廚房、餐廳、衛生間
二 層:休息區(附陽臺)、臥室(附衛生間)、2臥室、書房、衛生間
頂 層:露臺
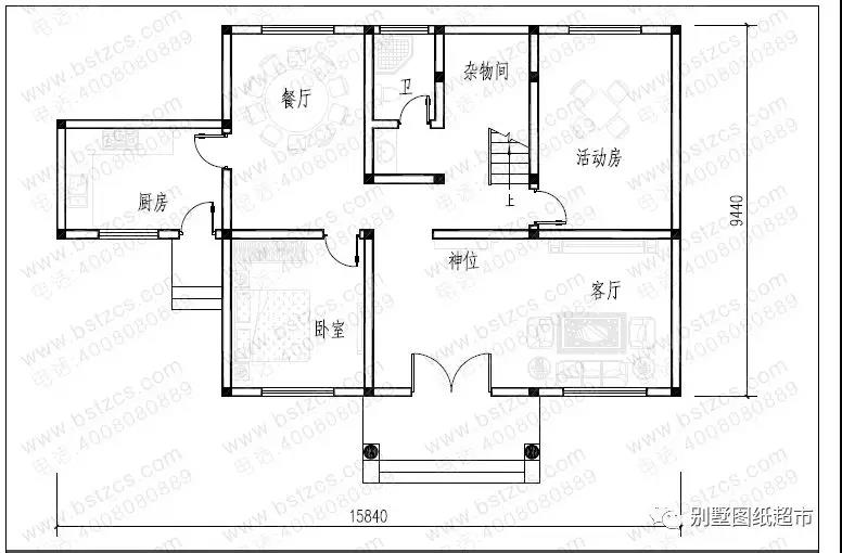
農村二層小別墅

編號: DC0017
層數: 二層
結構形式: 磚混結構
開間: 15.84米 進深: 9.44米
占地面積: 134.8平方米
建筑面積: 225.6平方米
主體造價: 18-22萬
首層戶型:

圖紙預覽:

一 層:客廳、臥室、活動房(或臥室)、廚房、餐廳、雜物間、衛生間
二 層:4臥室、衛生間、露臺
帶露臺及車庫二層半農村自建別墅


編號: DC0172
結構形式: 磚混結構
開間: 11.74米 進深: 10.34米
占地面積: 117.85平方米
建筑面積: 307.92平方米
主體造價: 22-27萬
首層戶型:

圖紙預覽:

一 層:堂屋、客廳、臥室、廚房(兼餐廳)、儲藏間、農具間、衛生間、車庫
二 層:客廳、臥室(附陽臺)、2臥室(附共用衛生間)、臥室、儲藏間、衛生間
三 層:臥室(附陽臺)、2臥室、儲藏間、衛生間、露臺
新農村二層半帶車庫自建別墅


編號: DC0228
結構形式: 磚混結構
開間: 11.7米 進深: 12.9米
占地面積: 132.5平方米
建筑面積: 337.69平方米
主體造價: 22-26萬
首層戶型:

圖紙預覽:

一 層:客廳、臥室(附衛生間)、廚房、餐廳、衛生間、車庫
二 層:小客廳、臥室(附書房,衛生間,陽臺)、臥室(附陽臺)、2臥室、衛生間
三 層:臥室(附書房)、臥室、儲藏室、衛生間、露臺
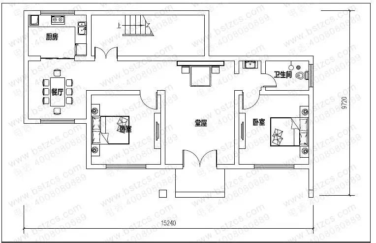
農村二層半平屋頂自建房


編號: DC0241
結構形式: 磚混結構
開間: 15.24米 進深: 9.72米
占地面積: 105.98平方米
建筑面積: 209.36平方米
主體造價: 18-24萬
首層戶型:

圖紙預覽:

一 層:堂屋、2臥室、廚房、餐廳、衛生間
二 層:客廳(附陽臺)、臥室(附陽臺)、臥室、衛生間、屋頂曬臺
三 層:屋頂曬臺
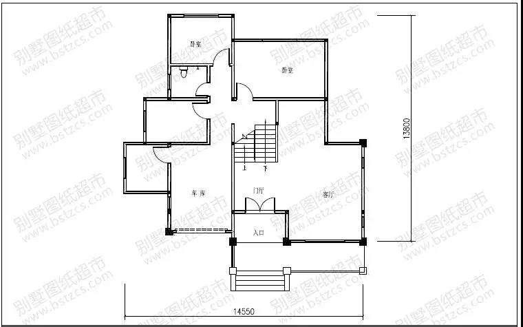
帶車庫及露臺錯層別墅


編號: DC0170
結構形式: 框架結構
開間: 14.55米 進深: 13.8米
占地面積: 170.6平方米
建筑面積: 381.7平方米
主體造價: 32-38萬
首層戶型:

圖紙預覽:

一 層:門廳、客廳、2臥室、儲藏室、衛生間、車庫(附雜物間)
二 層:臥室(附陽臺)、廚房、餐廳、衛生間
三 層:臥室(附陽臺,露臺)、臥室、陽臺(附露臺)、衛生間
二層帶閣樓自建別墅


編號: DC0260
結構形式: 框架結構
開間: 14.2米 進深: 11.1米
占地面積: 144.24平方米
建筑面積: 344.08平方米
主體造價: 34-40萬
首層戶型:

圖紙預覽:

一 層:大堂、客廳、臥室(附衛生間)、臥室、廚房、餐廳、衛生間
二 層:起居室、臥室(附露臺)、臥室(附陽臺)、臥室、衛生間、陽臺
閣 樓:儲藏間、衛生間、露臺
新農村二層自建房別墅

編號: DC0354
結構形式: 磚混結構
開間: 13.8米 進深: 12.3米
占地面積: 176.06平方米
建筑面積: 362.03平方米
主體造價: 32-36萬
首層戶型:

二層戶型:

一 層:走廊、門廳、客廳、臥室(附衛生間)、臥室(附衣帽間)、廚房、餐廳、衛生間
二 層:起居室(附陽臺)、臥室(附衣帽間,書房,衛生間)、臥室(附2露臺)、臥室、衛生間
復式三層帶露臺簡歐小別墅

編號: DC0361
結構形式: 磚混結構
開間: 11米 進深: 12米
占地面積: 138.34平方米
建筑面積: 351.69平方米
主體造價: 30-35萬



一 層:門廳、客廳(中空)、臥室(附衛生間)、臥室、廚房、餐廳、衛生間
二 層:客廳(附露臺)、臥室(附衛生間,陽臺)、臥室(附書房)、臥室、衛生間
三 層:健身房、臥室(附衛生間)、臥室、衛生間、露臺
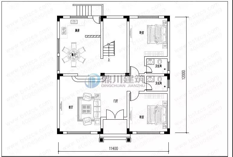
二層簡歐小別墅

編號: DC0290
結構形式: 磚混結構
開間: 13.2米 進深: 12米
占地面積: 147.23平方米
建筑面積: 360.51平方米
主體造價: 28-32萬
首層戶型:

圖紙預覽:

一 層:門廳、客廳、臥室、廚房(附洗衣房)、餐廳、衛生間、車庫
二 層:起居室、主臥(附書房,衣帽間,衛生間)、臥室(附陽臺)、2臥室、衛生間
農村二層帶陽臺小別墅

編號: DC0315
結構形式: 框架結構
開間: 11.4米 進深: 12米
占地面積: 138.78平方米
建筑面積: 309.63平方米
主體造價: 28-32萬
首層戶型:

圖紙預覽:

一 層:門廳、客廳、臥室(附衛生間)、臥室、廚房、餐廳、衛生間
二 層:起居室、臥室(附書房,衛生間,陽臺)、臥室(附陽臺)、臥室、衛生間
二層帶露臺小戶型別墅

編號: DC0366
結構形式: 磚混結構
開間: 8米 進深: 12.3米
占地面積: 100.91平方米
建筑面積: 211.08平方米
主體造價: 18-22萬
首層戶型:

圖紙預覽:

一 層:客廳、臥室(附衛生間)、廚房、餐廳、衛生間
二 層:客廳(附露臺)、臥室(附衛生間)、臥室、衛生間
二層帶車庫農村自建別墅

編號: DC0192
結構形式: 框架結構
開間: 16.94米 進深: 12.04米
占地面積: 168.28平方米
建筑面積: 331.33平方米
主體造價: 30-36萬
首層戶型:

圖紙預覽:

一 層:門廳、客廳、2臥室、廚房、餐廳、衛生間、車庫
二 層:起居室、臥室(附書房,衣帽間,衛生間,露臺)、臥室、衛生間、陽臺、露臺
建房是大事,一輩子可能也就建一套房!得住個幾十年,所以一定要建造一款經典不過時的,戶型實用的,這樣才值得!
.jpg)
本文由別墅圖紙超市編輯發布,如需了解更多,可登錄網站主頁http://m.titanex.cn/,或者撥打我們的免費電話400-8080-889在線咨詢。
>>>>推薦閱讀:15套二、三層帶堂屋的農村別墅,農村建再好不過!
>>>>推薦閱讀:8套簡歐小別墅,80、90后最愛的戶型,時尚簡約!
>>>>推薦閱讀:12款占地不足百平的農村別墅,經濟實用,最高造價不過26萬!











