這13款別墅圖紙,讓你的房子與別人花一樣的錢卻好看100倍
每每和朋友聊到建房子這個問題,大家總是相談甚歡。從令人崩潰的別墅圖紙選擇談到選好圖紙之后的主體建造,然后再分享最近看到哪個村哪家又在建房子。的確,對于建房子,小編和大家一樣都喜歡看各種各樣的別墅圖紙。因為別墅圖紙是一個房子最基礎的部分,它直接決定了以后你的房子能不能建的出彩實用和入住后的舒適度。從房子的造型,顏色外觀到房子的布局戶型,一直想是否自己心中最理想家的模樣。
那么今天小編為大家推薦13款別墅圖紙,這些圖紙都是小編精挑細選了甚久才拿出來和大家分享。每一款都是很多業主建造之后非常喜歡的大熱戶型。
二層帶閣樓別墅


建成案例:

編號: DC0260
結構形式: 框架結構
開間: 14.2米 進深: 11.1米
占地面積: 144.24平方米
建筑面積: 344.08平方米
主體造價: 34-40萬
首層戶型:

圖紙預覽:

一 層:大堂、客廳、臥室(附衛生間)、臥室、廚房、餐廳、衛生間
二 層:起居室、臥室(附露臺)、臥室(附陽臺)、臥室、衛生間、陽臺
閣 樓:儲藏間、衛生間、露臺
漂亮三層帶露臺歐式別墅


建成實拍:

編號: DC0218
結構形式: 框架結構
開間: 11.8米 進深: 12.5米
占地面積: 134.94平方米
建筑面積: 360.63平方米
主體造價: 35-42萬
首層戶型:

圖紙預覽:

一 層:客廳(中空)、臥室(附衛生間)、棋牌室、廚房、餐廳、衛生間
二 層:會客廳(附露臺)、多功能廳、臥室(附衛生間)、2臥室、衛生間
三 層:多功能廳、棋牌室、臥室(附衛生間)、2臥室、衛生間、露臺
二層帶露臺農村別墅

建成實拍:

編號: DC0287
結構形式: 框架結構
開間: 12.3米 進深: 11.1米
占地面積: 130平方米
建筑面積: 295.19平方米
主體造價: 25-30萬
首層戶型:

圖紙預覽:

一 層:走廊、堂屋、客廳、2臥室、廚房、餐廳、衛生間、儲藏室
二 層:客廳(附露臺)、臥室(附書房,露臺)、臥室(附露臺)、臥室、衛生間
新農村三層帶露臺別墅

建成實拍:


編號: DC0193
結構形式: 磚混結構
開間: 9.9米 進深: 14.2米
占地面積: 116.54平方米
建筑面積: 329.53平方米
主體造價: 22-28萬
首層戶型:

一 層:客廳、臥室、廚房、餐廳、衛生間、車庫
二 層:起居室、臥室(附露臺)、臥室(附陽臺)、臥室、衛生間
三 層:臥室(附衣帽間,露臺)、2臥室、衛生間、露臺
三層帶露臺多窗別墅

建成實拍:

編號: DC0179
結構形式: 框架結構
開間: 14.34米 進深: 14.045米
占地面積: 154.33平方米
建筑面積: 332.28平方米
主體造價: 36-42萬
首層戶型:

圖紙預覽:

一 層:客廳(中空)、臥室(附衛生間)、臥室、棋牌室、廚房、餐廳、衛生間
二 層:起居室、臥室(附衣帽間,衛生間)、2臥室、衛生間
三 層:家庭影院(附露臺)、臥室、洗衣房、露臺
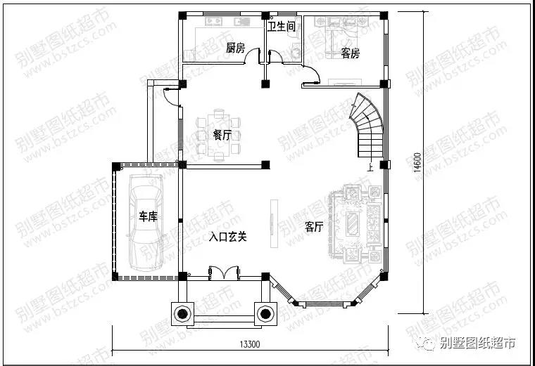
三層帶大露臺復式別墅

建成實拍:

編號: DC0001
結構形式: 框架結構
開間: 13.3米 進深: 14.6米
占地面積: 147.7平方米
建筑面積: 366.4平方米
主體造價: 34-40萬
首層戶型:

圖紙預覽:

一 層:入口玄關、客廳、餐廳、廚房、客房、衛生間、車庫
二 層:臥室、臥室(附陽臺)、臥室(附書房,衛生間,陽臺)、衛生間
三 層:活動廳(附露臺)、臥室、臥室(附露臺)、臥室(附書房,衛生間,陽臺)、衛生間
復式三層帶車庫簡歐小別墅

建成實拍:

編號: DC0229
結構形式: 磚混結構
開間: 11.7米 進深: 11.1米
占地面積: 125.93平方米
建筑面積: 303.96平方米
主體造價: 24-28萬
首層戶型:

圖紙預覽:

一 層:客廳(中空)、臥室、廚房、餐廳、衛生間、車庫
二 層:小客廳、臥室(附陽臺)、2臥室、衛生間
三 層:小客廳、臥室(附陽臺)、2臥室、衛生間、露臺
二層帶車庫別墅

建成實拍:

編號: DC0265
結構形式: 框架結構
開間: 14.7米 進深: 10.8米
占地面積: 148.78平方米
建筑面積: 354.63平方米
主體造價: 30-35萬
首層戶型:

圖紙預覽:

一 層:客廳、臥室、棋牌室、廚房、餐廳、衛生間、儲藏室、車庫
二 層:休息區、客廳(附陽臺)、臥室(附書房,衛生間)、臥室(附衣帽間)、2臥室、衛生間
新農村二層復式帶露臺別墅

建成實拍:

編號: DC0250
結構形式: 磚混結構
開間: 11.34米 進深: 13.31米
占地面積: 136.40平方米
建筑面積: 254.44平方米
主體造價: 20-25萬
首層戶型:

圖紙預覽:

一 層:客廳、臥室(附衛生間)、臥室、儲藏室、廚房、餐廳、衛生間
二 層:休息區(附陽臺)、臥室(附衛生間)、2臥室、書房、衛生間
頂 層:露臺
漂亮農村二層小別墅

建成實拍:

編號: DC0355
結構形式: 磚混結構
開間: 12米 進深: 11.6米
占地面積: 135.56平方米
建筑面積: 300.98平方米
主體造價: 25-30萬
首層戶型:

二層戶型:

一 層:門廳、客廳、臥室(附衛生間)、廚房、餐廳、衛生間
二 層:起居室、棋牌室(附露臺)、臥室(附衛生間,陽臺)、臥室(附陽臺)、臥室、衛生間
農村三層帶旋轉樓梯別墅

建成實拍:

編號: DC0219
結構形式: 框架結構
開間: 11.7米 進深: 12米
占地面積: 138.16平方米
建筑面積: 352.46平方米
主體造價: 30-35萬
首層戶型:

圖紙預覽:

一 層:客廳、臥室(附衛生間)、臥室、廚房、餐廳、衛生間
二 層:客廳、臥室(附衛生間)、臥室、兒童房、棋牌室、衛生間、露臺
三 層:臥室(附書房)、臥室、衛生間、露臺
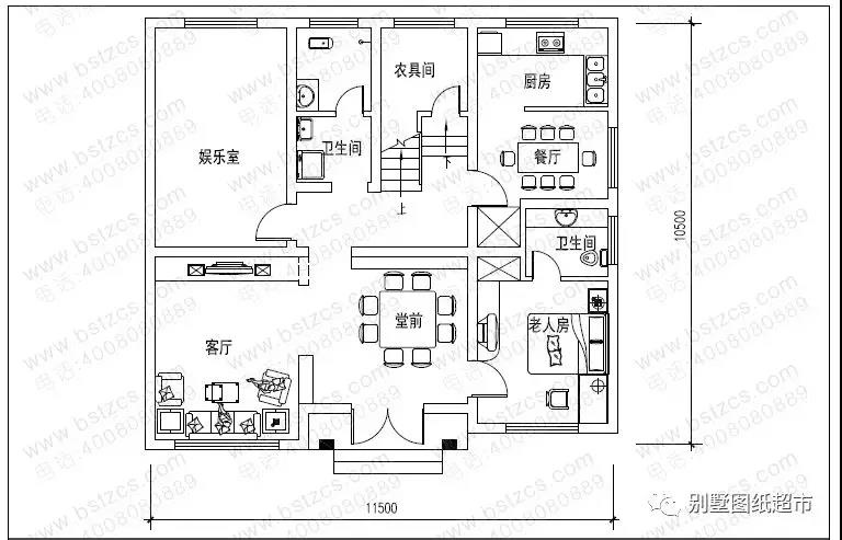
三層帶大露臺多窗別墅

建成實拍:

編號: DC0028
結構形式: 磚混結構
開間: 11.5米 進深: 10.5米
占地面積: 121.03平方米
建筑面積: 312.31平方米
主體造價: 22-26萬
首層戶型:

圖紙預覽:

一 層:堂屋、客廳、老人房(附衛生間)、娛樂室、廚房、餐廳、農具間、衛生間
二 層:客廳、2臥室(附陽臺)、2臥室、2衛生間
三 層:2臥室(附陽臺)、臥室、衛生間、露臺
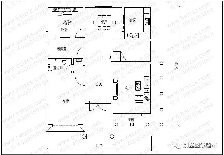
二層帶走廊別墅

建成實拍:

編號: DC0233
結構形式: 磚混結構
開間: 11.1米 進深: 12.7米
占地面積: 133.49平方米
建筑面積: 259.6平方米
主體造價: 28-32萬
首層戶型:

圖紙預覽:

一 層:走廊、玄關、客廳、臥室、廚房、餐廳、儲藏室、衛生間、車庫
二 層:客廳、臥室(附衛生間,陽臺)、3臥室、書房、衛生間
閣 樓:儲藏間
每到開春的季節,建房的人很多,大家都趕著梅雨季節前動工,很多人沒有籌備好,就匆匆忙忙開工建造,建造的房子就不那么滿意。建一棟房子是要流傳幾十年的,因此戶型必須要精挑細選,再著急開工也要選漂亮大氣和實用的。這13款農村別墅,符合農村生活設計,說是老百姓的最愛也不為過。
.jpg)
本文由別墅圖紙超市編輯發布,如需了解更多,可登錄網站主頁http://m.titanex.cn/,或者撥打我們的免費電話400-8080-889在線咨詢。
>>>>推薦閱讀:2018年最新農村別墅設計定制圖紙12款,趁還沒火,趕緊收了!
>>>>推薦閱讀:12款占地不足百平的農村別墅,經濟實用,最高造價不過26萬!
>>>>推薦閱讀:10套真正實用的農村自建房,每套都是經典!











