農村20萬二層別墅房子設計圖,精選6款隨你挑
精選6款農村20萬二層別墅房子設計圖,告訴你怎樣花小錢辦大事。這幾款別墅戶型設計都很經典,各種功能性房間齊全,露臺、活動室、棋牌室等悉數盡有。另外簡單精致的外觀讓人看上去非常的舒適,造價20萬左右就搞定。這樣布局合理,造價不高,施工還方便的設計你還在糾結啥!
第一款:二層農村自建別墅


編號: DC0031
開間: 13.14米 進深: 12.24米
占地面積: 134.73平方米
建筑面積: 276.34平方米
主體造價: 18-22萬
一 層:客廳、臥室(附衛生間)、臥室、棋牌室、廚房、餐廳、衛生間
二 層:起居室(附露臺)、臥室(附衛生間)、臥室(附書房)、臥室、衛生間
首層戶型:

圖紙預覽:


第二款:二層新農村小別墅

編號: DC0140
開間: 11米 進深: 10.08米
占地面積: 90.2平方米
建筑面積: 196.92平方米
主體造價: 18-22萬
一 層:客廳、臥室、廚房、餐廳、衛生間
二 層:客廳(附陽臺)、活動廳、3臥室、衛生間
首層戶型:

圖紙預覽:


第三款:新農村二層別墅

編號: DC0027
開間: 11.4米 進深: 10.3米
占地面積: 105.95平方米
建筑面積: 210平方米
主體造價: 18-22萬
一 層:走廊、客廳、臥室、廚房、餐廳、衛生間
二 層:客廳(附陽臺)、臥室(附陽臺)、臥室(附書房)、臥室、衛生間
首層戶型:

圖紙預覽:


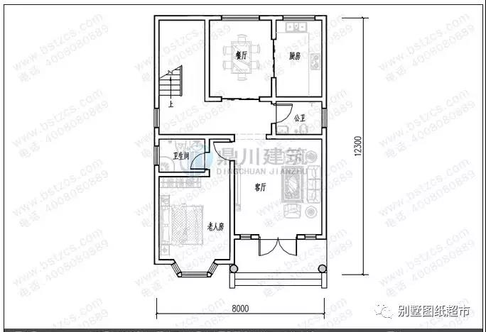
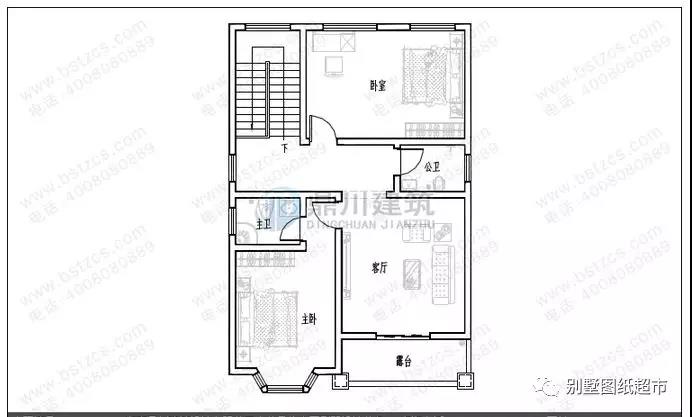
第四款:二層帶露臺小戶型別墅

編號: DC0366
開間: 8米 進深: 12.3米
占地面積: 100.91平方米
建筑面積: 211.08平方米
主體造價: 18-22萬
一 層:客廳、臥室(附衛生間)、廚房、餐廳、衛生間
二 層:客廳(附露臺)、臥室(附衛生間)、臥室、衛生間
首層戶型:

二層戶型:

第五款:鄉村二層別墅

編號: DC0012
開間: 12.6米 進深: 10.1米
占地面積: 111.35平方米
建筑面積: 253.1平方米
主體造價: 18-22萬
一 層:堂屋、客廳、臥室、廚房、餐廳、衛生間
二 層:客廳(附陽臺)、棋牌室、臥室(附陽臺)、2臥室、衛生間
首層戶型:

圖紙預覽:



第六款:二層帶棋牌室別墅

編號: DC0009
開間: 10.2米 進深: 9.7米
占地面積: 96.6平方米
建筑面積: 193.2平方米
主體造價: 18-22萬
一 層:玄關、客廳、臥室、棋牌室、廚房、餐廳、衛生間
二 層:小客廳、臥室(附陽臺)、3臥室、衛生間
首層戶型:

圖紙預覽:


.jpg)
本文由別墅圖紙超市編輯發布,如需了解更多,可登錄網站主頁http://m.titanex.cn/,或者撥打我們的免費電話400-8080-889在線咨詢。
>>>>推薦閱讀:二層田園歐式小別墅,建成效果簡單自然又大氣
>>>>推薦閱讀:這套二層農村自建房,詮釋了簡單實用才是好的真諦
>>>>推薦閱讀:回農村建二層別墅,秒殺城里套房,兩棟建造實拍都是洋氣代表











