史上最全農村別墅類型推薦,每一個想建別墅的人都該看看!
總是有很多人不知道該建什么樣的別墅,又覺得風格和類型太多無法選擇。而且不同的客戶群體又有不同的建房需求,單一的自建房類型已不能滿足部分客戶的需求了。面對廣大的建房群眾,小編在了解到客戶的各種建房需求后整理了史上最全農村別墅類型,每一個想建別墅的人都該看看。
一層農村別墅
也許會有一部分的人認為一層的小別墅可能不如二層或三層的那么大方。其實最主要的還是看房子的設計。一款好的一層自建房圖紙建出來可能會出乎你的意料!以下三套一層小別墅各有特點,第一套簡單大方布局規整;第二套外觀時尚大氣;第三套造價低又小清新!
編號: DC0369
層數: 一層
結構形式: 磚混結構
主體造價: 16-20萬
開間: 15米
進深: 11.4米
占地面積: 177.39平方米
建筑面積: 217.03平方米


編號: DC0302
層數: 一層
結構形式: 磚混結構
主體造價: 25-30萬
開間: 19.8米
進深: 13.8米
占地面積: 243.56平方米
建筑面積: 346.94平方米


編號: DC0237
層數: 一層帶閣樓
結構形式: 磚混結構
主體造價: 10-15萬
開間: 16米
進深: 9.3米
占地面積: 145.38平方米
建筑面積: 267.99平方米


二層農村別墅
二層的小別墅在農村也比較常見,它既可以很時尚經典又可以有足夠的空間供家庭居住。以下三款造價在30萬左右,造型大方又自成一體。第一套帶車庫,亮點在于立體的窗子;第二套歐式范十足,冷色調帶給人高貴的視覺感受;第三套帶大陽臺,大氣的門斗、暖色的外墻和文化石都別具一格!
編號: DC0368
層數: 二層
結構形式: 磚混結構
主體造價: 33-38萬
開間: 14.6米
進深: 12.65米
占地面積: 177.17平方米
建筑面積: 409.85平方米


編號: DC0315
層數: 二層
結構形式: 框架結構
主體造價: 28-32萬
開間: 11.4米
進深: 12米
占地面積: 138.78平方米
建筑面積: 309.63平方米


編號: DC0154
層數: 二層
結構形式: 磚混結構
主體造價: 26-30萬
開間: 12米
進深: 11.7米
占地面積: 115.33平方米
建筑面積: 332.7平方米


三層農村別墅
說到三層的小別墅,這可是農村最常見的別墅類型了。足夠大的空間和大氣的外觀都是大家選擇建三層的理由。以下三套不同風格你更愛哪種?第一套中式風格,白色的外墻加上文化石的點綴,婉約而浪漫。帶花紋的窗戶也是中式風格的特色之一,經典大氣;第二套古羅馬風格很具有質感,獨特的風格帶給人異域風情的視覺感受;第三套歐式風格可能是很多朋友的最愛,時尚又大氣!
編號: DC0367
層數: 三層
結構形式: 磚混結構
主體造價: 40-45萬
開間: 12米
進深: 13.92米
占地面積: 160.85平方米
建筑面積: 467.26平方米


編號: DC0288
層數: 三層
結構形式: 框架結構
主體造價: 40-45萬
開間: 13.5米
進深: 10.7米
占地面積: 137.48平方米
建筑面積: 382.95平方米


編號: DC0285
層數: 三層
結構形式: 框架結構
主體造價: 40-45萬
開間: 15.9米
進深: 10.5米
占地面積: 155.5平方米
建筑面積: 431.12平方米


三層以上別墅
有些家庭因為需求會想要建更高層的。第一套適合那種臨街居住、想要開店的家庭,商鋪和生活區分隔開來,既不影響生活又衛生干凈;第二套適合宅基地相對較小的家庭建;第三套整體清新淡雅又不失大氣,一層帶老人房適合家里有老人的。
編號: DC0164
層數: 四層
結構形式: 框架結構
主體造價: 28-32萬
開間: 8米
進深: 12.3米
占地面積: 103.33平方米
建筑面積: 407.9平方米


編號: DC0234
層數: 四層
結構形式: 磚混結構
主體造價: 28-35萬
開間: 10米
進深: 10米
占地面積: 104.86平方米
建筑面積: 388.62平方米


編號: DC0323
層數: 四層
結構形式: 框架結構
主體造價: 50萬以上
開間: 11.1米
進深: 15.22米
占地面積: 160.55平方米
建筑面積: 639.84平方米


雙拼別墅
家里有兩兄弟的人最適合建雙拼別墅,有利于增強兄弟之間的感情。下面三款雙拼有你喜歡的嗎?第一套帶老虎窗,時尚獨具美感;第二套整體比較簡單實用,并且帶車庫;第三套三層帶落地窗,歐式風格讓房子更顯大氣!
編號: DC0360
層數: 二層
結構形式: 磚混結構
主體造價: 43-48萬
開間: 16米
進深: 13.2米
占地面積: 212.8平方米
建筑面積: 483.89平方米


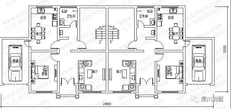
編號: DC0117
層數: 二層
結構形式: 磚混結構
主體造價: 38-45萬
開間: 24.8米
進深: 10米
占地面積: 221.6平方米
建筑面積: 388.29平方米


編號: DC0284
層數: 三層
結構形式: 框架結構
主體造價: 50萬以上
開間: 23.2米
進深: 12.1米
占地面積: 274.14平方米
建筑面積: 732.07平方米


以上這么多別墅你最喜歡第幾款呢?歡迎聯系我們哦~
.jpg)
本文由別墅圖紙超市編輯發布,如需了解更多,可登錄網站主頁http://m.titanex.cn/,或者撥打我們的免費電話400-8080-889在線咨詢。
>>>>推薦閱讀:6款非常適合農村自建房的三層復式別墅設計
>>>>推薦閱讀:6套11×12米的農村別墅大熱戶型,挑一套年后就建!
>>>>推薦閱讀:農村建房最鐘愛的別墅戶型:第1款最經濟,第6款賣最火











