這幾款帶柴火灶的農村別墅,勾起農村人最難忘的回憶!
“小編發現很多農村地區還保留著燒柴火灶的習慣。柴火灶燒出來的飯菜格外的香,而且因為農業生產,收成之后會產生很多可供燃燒的原料。如:桔梗、棉花桿、稻草等。所以很多農村自建房偏好弄一個柴火灶,實用又接地氣。而且很多農村人喜歡在家里辦酒席,那樣既方便又熱鬧,這個時候柴火灶就發揮了它最大的作用了。話說小編最喜歡的就是柴火灶煮出來的鍋巴了,又香又脆的,柴火灶真的是小時候最美好的回憶呢!下面小編就介紹幾款帶柴火灶的農村別墅給大家吧!

編號: DC0211
層數: 三層
結構形式: 磚混結構
主體造價: 20-25萬
開間: 11.9米
進深: 10.3米
占地面積: 120.8平方米
建筑面積: 290.99平方米


一 層:堂屋、客廳、老人房(附衛生間)、麻將室(附雜物間)、雜物間、廚房(兼餐廳)、衛生間
二 層:小客廳、主臥(附衛生間,陽臺)、臥室(附陽臺)、臥室、衛生間
三 層:臥室(附衛生間)、臥室(附陽臺)、臥室、衛生間、露臺
圖紙預覽:



編號: DC0024
層數: 三層
結構形式: 磚混結構
主體造價: 18-22萬
開間: 8.9米
進深: 8.4米
占地面積: 75.61平方米
建筑面積: 252.39平方米


一 層: 客廳、臥室、廚房(兼餐廳)、衛生間
二 層: 客廳(附陽臺)、2臥室、衛生間
三 層: 臥室(附陽臺)、2臥室、衛生間
圖紙預覽:


編號: DC0088
層數: 三層
結構形式: 磚混結構
主體造價: 25-30萬
開間: 13.4米
進深: 11.7米
占地面積: 132.18平方米
建筑面積: 361.36平方米


一 層: 堂屋、客廳、2臥室、廚房(兼餐廳)、衛生間
二 層: 起居室(附陽臺)、臥室(附衛生間)、臥室(附陽臺)、2臥室、衛生間
三 層: 臥室(附衛生間)、臥室(附露臺)、臥室、衛生間、露臺
圖紙預覽:


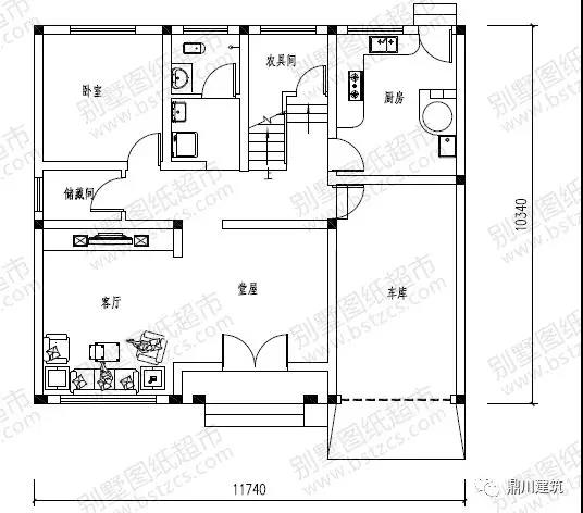
編號: DC0172
層數: 三層
結構形式: 磚混結構
主體造價: 22-27萬
開間: 11.74米
進深: 10.34米
占地面積: 117.85平方米
建筑面積: 307.92平方米


一 層: 堂屋、客廳、臥室、廚房(兼餐廳)、儲藏間、農具間、衛生間、車庫
二 層: 客廳、臥室(附陽臺)、2臥室(附共用衛生間)、臥室、儲藏間、衛生間
三 層: 臥室(附陽臺)、2臥室、儲藏間、衛生間、露臺
圖紙預覽:


.jpg)
本文由別墅圖紙超市編輯發布,如需了解更多,可登錄網站主頁http://m.titanex.cn/,或者撥打我們的免費電話400-8080-889在線咨詢。
>>>>推薦閱讀:5款論戶型和外觀都是農村別墅精品的二層精致小別墅
>>>>推薦閱讀:7套兩層復式自建別墅戶型,自建房中的精品戶型!
>>>>推薦閱讀:分享10套戶型正風水好的四層帶車庫露臺自建別墅圖紙給您











