5款二層帶超大露臺農村別墅,既可以休閑又可晾曬,適合農村建!
帶大露臺的房子,既可以用于休閑,又可以用于晾曬,對于農村來說再實用不過。下面介紹的這5款農村的二層自建別墅,造價不高,戶型周正,還帶超大的露臺。分享給喜歡大露臺的你們!
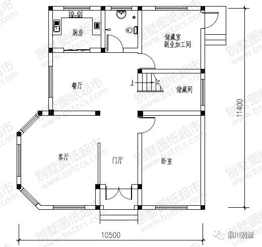
編號: DC0173
層數: 二層帶閣樓
結構形式: 磚混結構
主體造價: 14-18萬
開間: 10.5米
進深: 11.4米
占地面積: 110平方米
建筑面積: 186.5平方米


一 層: 門廳、客廳、臥室、儲藏室、廚房、餐廳、衛生間
二 層: 家庭廳、娛樂廳、2臥室、衛生間、露臺
閣 樓: 儲藏間
編號: DC0160
層數: 二層
結構形式: 磚混結構
主體造價: 22-27萬
開間: 11.1米
進深: 11.4米
占地面積: 123.09平方米
建筑面積: 207.43平方米




一 層: 玄關、客廳、臥室、廚房、餐廳、儲藏室、衛生間、車庫
二 層: 臥室(附衛生間)、臥室(附衣帽間)、臥室、衛生間、露臺
編號: DC0046
層數: 二層
結構形式: 框架結構
主體造價: 22-28萬
開間: 11.8米
進深: 14.1米
占地面積: 135.6平方米
建筑面積: 229.84平方米






一 層: 客廳、臥室、廚房、餐廳、雜物間、衛生間、車庫
二 層: 3臥室、衛生間、露臺
編號: DC0320
層數: 二層
結構形式: 磚混結構
主體造價: 22-26萬
開間: 10.9米
進深: 10.8米
占地面積: 93.52平方米
建筑面積: 195.83平方米


一 層: 客廳、臥室、廚房、餐廳、衛生間、車庫
二 層: 起居室、3臥室、衛生間、露臺
編號: DC0054
層數: 二層
結構形式: 磚混結構
主體造價: 20-25萬
開間: 11.34米
進深: 13.31米
占地面積: 136.40平方米
建筑面積: 254.44平方米


一 層: 客廳、臥室(附衛生間)、臥室、儲藏室、廚房、餐廳、衛生間
二 層: 休息區(附陽臺)、臥室(附衛生間)、2臥室、書房、衛生間
頂 層: 露臺
以上5款農村別墅,露臺超大超時尚,夏天用于農村休閑和乘涼,平時用于晾曬很方便。大家比較喜歡哪款呢?
.jpg)
本文由別墅圖紙超市編輯發布,如需了解更多,可登錄網站主頁http://m.titanex.cn/,或者撥打我們的免費電話400-8080-889在線咨詢。
>>>>推薦閱讀:精選6款二層半自建別墅,二三十萬實現鄉村別墅夢
>>>>推薦閱讀:濃郁地中海風格的二層帶露臺農村別墅設計圖紙施工實拍
>>>>推薦閱讀:斜頂改平頂,這款二層復式帶露臺別墅設計依然還是這么美











